Development VICTORIA BAY, new construction in Rincón de la Victoria

Sold out
Ref: NE-1210
Torre de Benagalbon, 29730, Rincón de la Victoria, Málaga See on the map
Type of Complex
Residential
Type of Complex
Condition
Under construction
Condition

Properties in this development

All properties have been sold See developments in Málaga
All properties have been sold See developments in Málaga
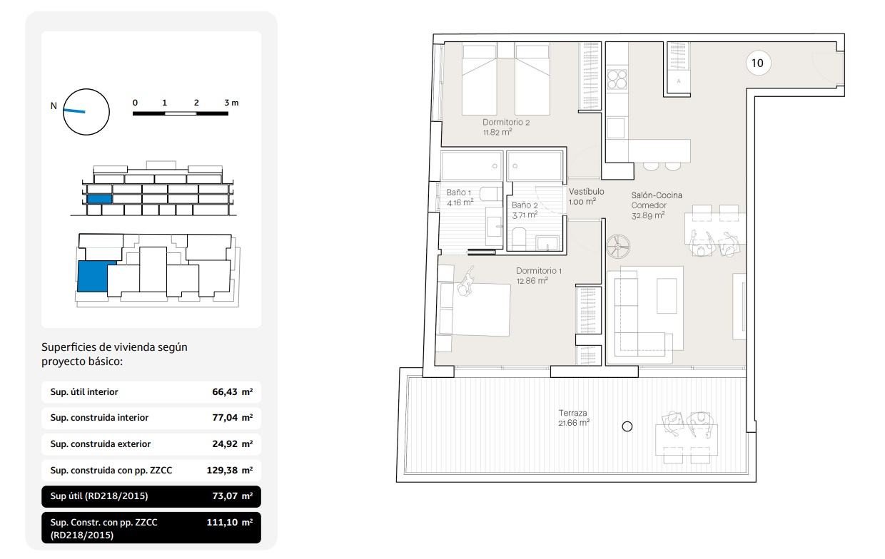
Flats 1 bedroom. 66 m² Vendido 1 offer Apartamentos(1) - VICTORIA BAY
Flats 2 bedrooms. From 76 m² Vendido 1 offer Apartamentos(2) - VICTORIA BAY
Developments nearby
Stella 8
From 680 000 €
Calle Navio , Benalmádena, Málaga
Elysea Suites
Urb. Prado Marina 5, Mijas, Málaga
Impresionante villa contemporánea de estilo moderno en primera línea de golf
La Quinta, Málaga, Málaga
Villa Magdalena
Costa del Sol, Ronda, Málaga
Impresionante villa en Reserva del Higuerón
Costa del Sol, Benalmádena, Málaga
La Villa Marielle
Nueva Andalucia, Málaga, Málaga
Espectacular villa con un estilo de vida exclusivo
La Cerquilla, Málaga, Málaga
Villa Paris
Nueva Andalucia, Málaga, Málaga
Maravillosa villa de estilo contemporáneo
Guadalmina Alta, Málaga, Málaga
Villa con arquitectura sostenible y diseño moderno
Los Flamingos, Málaga, Málaga
Villa con magníficas vistas a la montaña
Nueva Andalucia, Málaga, Málaga
Preciosa villa con la combinación perfecta de lujo y comodidad
Nueva Andalucia, Málaga, Málaga

Details about the development

Ask us about the characteristics
Type of development
Building
Type of Complex
Residential
Condition
Under construction
Hot water
Aerothermal system
Heating type
By duct with installed machine
Exterior carpentry
Aluminum Thermal Break

Address of the development

Ask us about the location
Torre de Benagalbon, 29730, Rincón de la Victoria, Málaga
Sold out
Contact us to find out about other available developments.
Opening hours: 09:00-20:00
WhatsApp Contact via WhatsApp Contact
Check the prices
Contact us to find out about other available developments.
Sold out
Contact us to find out about other available developments.
Opening hours: 09:00-20:00
WhatsApp Contact via WhatsApp
Last update : 1 March 2026
Developments nearby
Stella 8
(5 230 - 6 506 €/m²)
4 properties for sale
Calle Navio , Benalmádena, Málaga
From 680 000 €
810 000 €
+ 2 types more
GarageElevatorGolf courseJacuzziStorage roomCommunity terraceSea view
ContactContact Call WhatsApp
Impresionante villa contemporánea de estilo moderno en primera línea de golf
Last property for sale Release date: 2018
La Quinta, Málaga, Málaga
Check the prices
Swimming poolGarageGymSecuritySaunaJacuzzi+8
ContactContact Call WhatsApp
La Villa Marielle
Last property for sale Release date: 2019
Nueva Andalucia, Málaga, Málaga
Check the prices
Swimming poolGarageGymSecurityBarJacuzzi+8
ContactContact Call WhatsApp
Espectacular villa con un estilo de vida exclusivo
Last property for sale Release date: 2018
La Cerquilla, Málaga, Málaga
Check the prices
Swimming poolSecurityJacuzziGardenPrivate swimming poolSea viewPrivate parking
ContactContact Call WhatsApp
Villa Paris
Last property for sale Release date: 2018
Nueva Andalucia, Málaga, Málaga
Check the prices
Swimming poolGarageElevatorGymSecurityJacuzzi+5
ContactContact Call WhatsApp
Maravillosa villa de estilo contemporáneo
Last property for sale Release date: 2014
Guadalmina Alta, Málaga, Málaga
Check the prices
Swimming poolSecurityStorage roomGardenPrivate swimming poolPrivate parking
ContactContact Call WhatsApp
Villa con arquitectura sostenible y diseño moderno
Last property for sale Release date: 2017
Los Flamingos, Málaga, Málaga
Check the prices
Swimming poolGarageElevatorSecurityStorage roomSolarium+3
ContactContact Call WhatsApp
Villa con magníficas vistas a la montaña
Last property for sale Release date: 2020
Nueva Andalucia, Málaga, Málaga
Check the prices
Swimming poolSecurityGardenBBQPrivate swimming pool
ContactContact Call WhatsApp
Preciosa villa con la combinación perfecta de lujo y comodidad
Last 2 properties for sale Release date: 2017
Nueva Andalucia, Málaga, Málaga
Check the prices
Swimming poolSecuritySolariumGardenBBQPrivate swimming poolPrivate parking
ContactContact Call WhatsApp
Moderna villa en la prestigiosa urbanización
Last property for sale Release date: 2015
Altos de los Monteros, Málaga, Málaga
Check the prices
Swimming poolElevatorGymSecuritySaunaStorage room+7
ContactContact Call WhatsApp
Espectacular villa de diseño contemporáneo
Last property for sale Release date: 2020
The Golden Mile, Málaga, Málaga
Check the prices
Swimming poolSecurityJacuzziStorage roomSolariumGarden+4
ContactContact Call WhatsApp
Fantástica villa moderna de reciente construcción
Last property for sale Release date: 2018
Bel Air, Málaga, Málaga
Check the prices
Swimming poolGymSecurityBarSaunaJacuzzi+6
ContactContact Call WhatsApp

Do you have questions or concerns about the purchase of your properties or other real estate services we offer in Spain?

Fill in and send an application form to receive your first free and non-binding advice.
Andriy Kushnir
Marketing and sales